3 Small Spaces Packed With Big Style Includes Floor Plans. Just because a space is small doesn't mean you can't pack it with style, and lots of savvy storage solutions. The fluidity of an open floor plan allows you to establish clear sightlines for your space.
That's why we heart this Midcentury styled cabinet by Modernist Cat.
While Bhargava agrees that "small spaces require creativity," it should never compromise your personal taste or style, but planning is key.
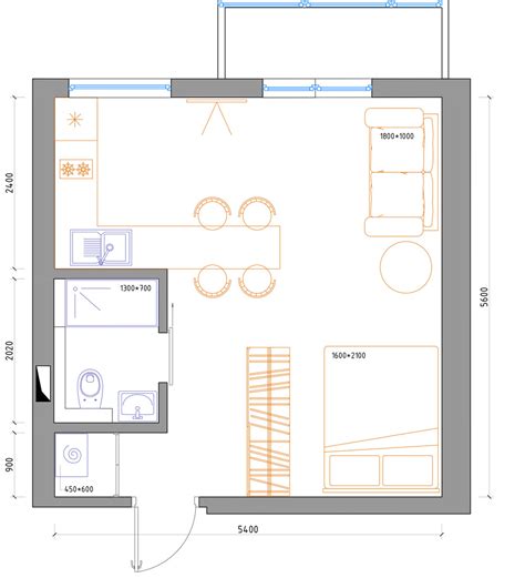
An L-shaped style that'll give you lots of space, which is especially great if you're trying to navigate the two-screen work-from-home game. When you look for home plans on Monster House Plans, you have access to hundreds of house plans and layouts built for very exacting specs. Just because a space is small doesn't mean you can't pack it with style, and lots of savvy storage solutions.








